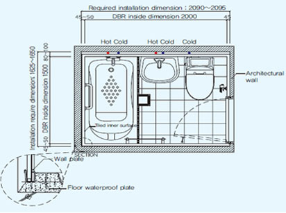
DBR cross section drawing

  • 丨 DBR DATA 丨
  • DBR cross section drawing

SMC waterproof penel

FRP waterproof panel

DBR dimension requirements

  • Required space to install bathroom
  • SLAB DOWN requires more than 45mm at least
    from the architecture wall of more than 60mm to
    the bathroom outside dimensions of the tile plane (except the pipe area is 80mm)
  • Bathroom finishing height
  • Bathroom step difference 80mm : living room
    F.L+110, SLAB DOWN 60mm required Bathroom
    step difference 60mm : living room F.L+110,
    SLAB DOWN 30mm required